当社の塀のねっこ(土のねっこ、土地分け丸も)などは標準長さが2000mmとなっています。
これを土地に沿って並べていくと、必ず余ったり足りなかったりします。
さて、どうしましょう。と思われるかもしれませんがご安心ください。
土地土地に合わせて長さを調整して出荷します。
調整の方法は基本的に、仕切り版と言われる型枠の部材を使って長さを調整していきます。
塀のねっこはL型ですので、その形をした部材を使って1mmピッチでセッティングをしていきます。
(製品誤差は数mmを許容しています)

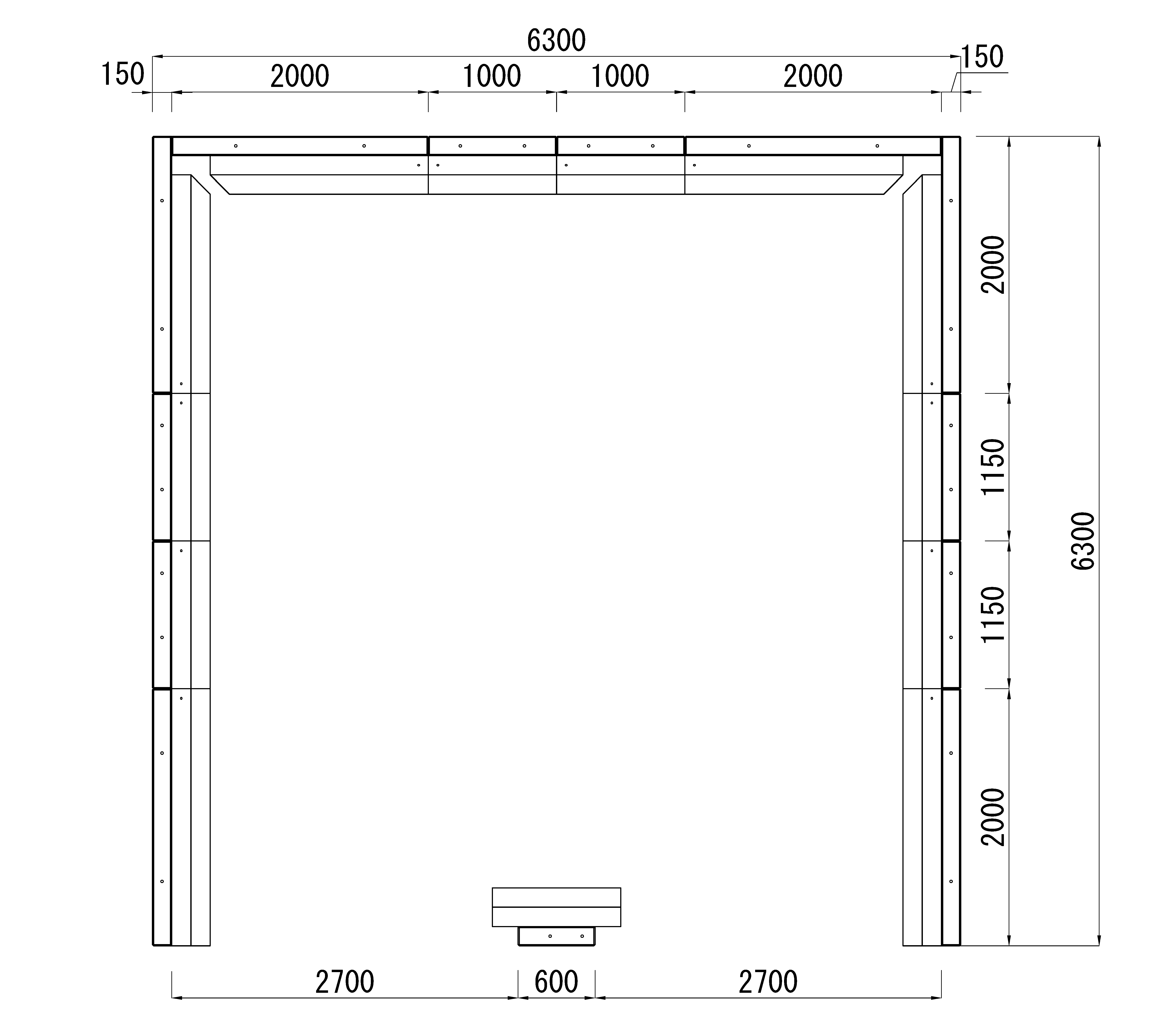
実はその前に行う作業がありまして、設置する場所に合わせた製品の割付です。
この図面の様にコーナー部材は底版をカットし、長さ調整用の製品を準備して現場で加工が生じないようにして出荷します。
図面の製品はH800という、かわいらしい製品ですので底版が短めです。
皆様の土地に合わせてスペシャルオーダーで製造しますので安心してくださいね。
